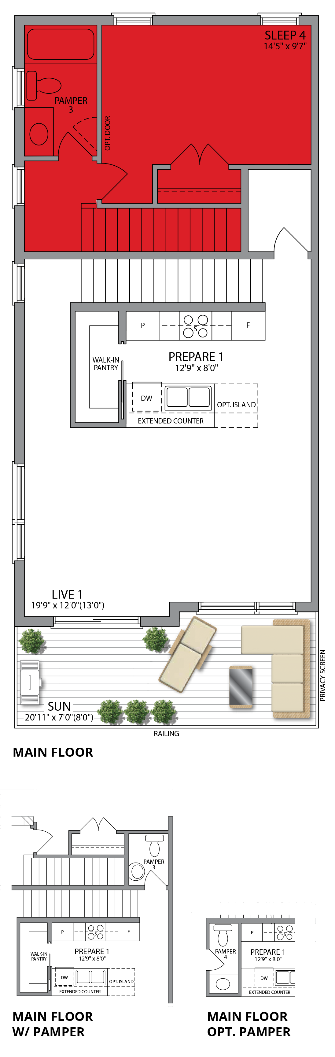
All areas and stated room dimensions are approximate. Furniture is not included. Sizes and specifications are subject to change without notice. Actual usable floor area may vary from stated floor area. End wall windows shown for end unit condition only. Windows on side walls are shown for end unit condition only, and are not representative for internal unit condition. All renderings and home sitings are artist's impressions. E. & O. E.

